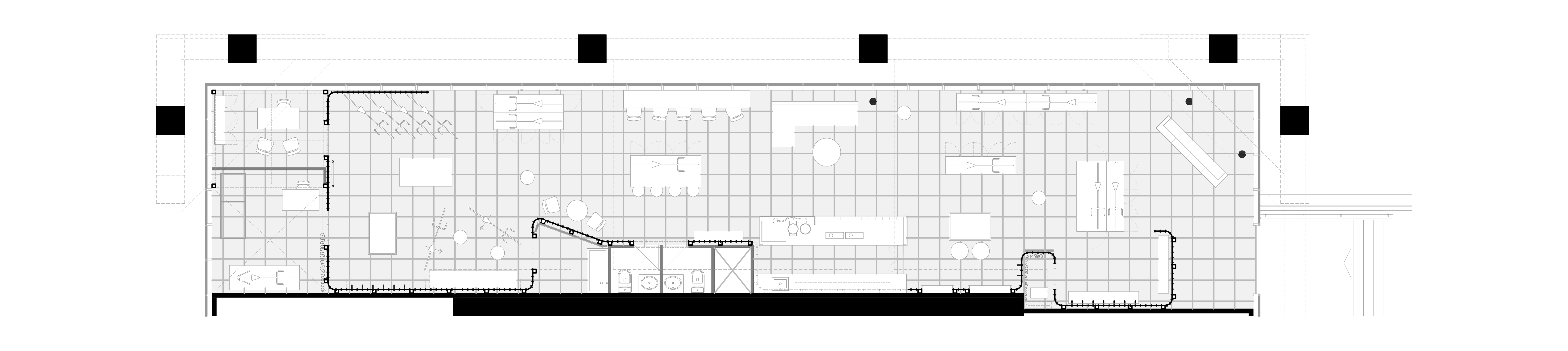
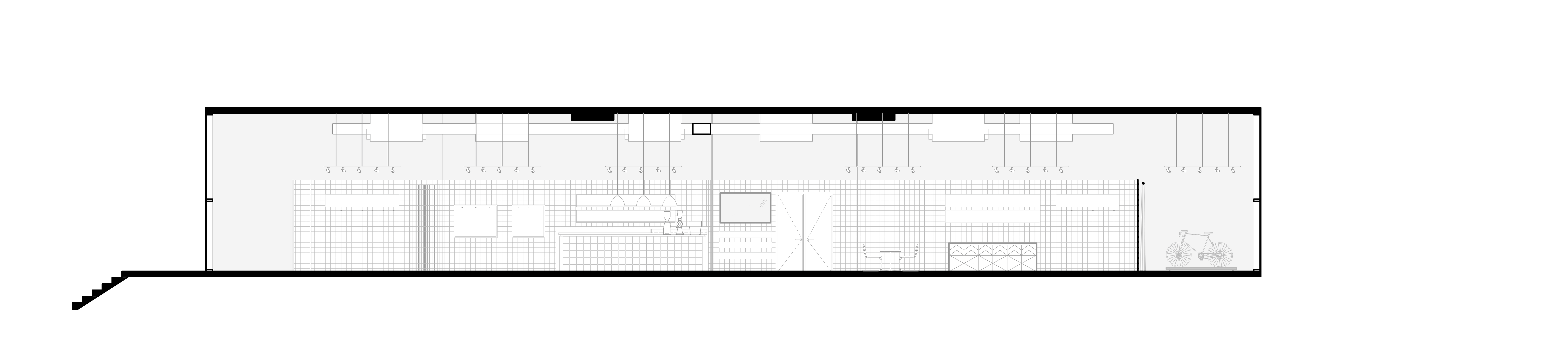
All 4 Bikers x Singular Coffee Roasters

Vitacura, Santiago, 2024.

Arquitectura comercial
173 m²

Diseño y construcción de una tienda de artículos de ciclismo combinada con una cafetería de especialidad, en un espacio con una reinterpretada estética industrial. Se optó por materiales en bruto y soluciones a la vista, como barras de acero y hormigón, para lograr una atmósfera sobria y contemporánea. En este espacio, el café y el ciclismo conviven para crear un punto de encuentro activo, funcional y con carácter.