Singular Coffee Roasters Los Leones

Providencia, Santiago, 2025.

Construido
Arquitectura comercial
24 m²

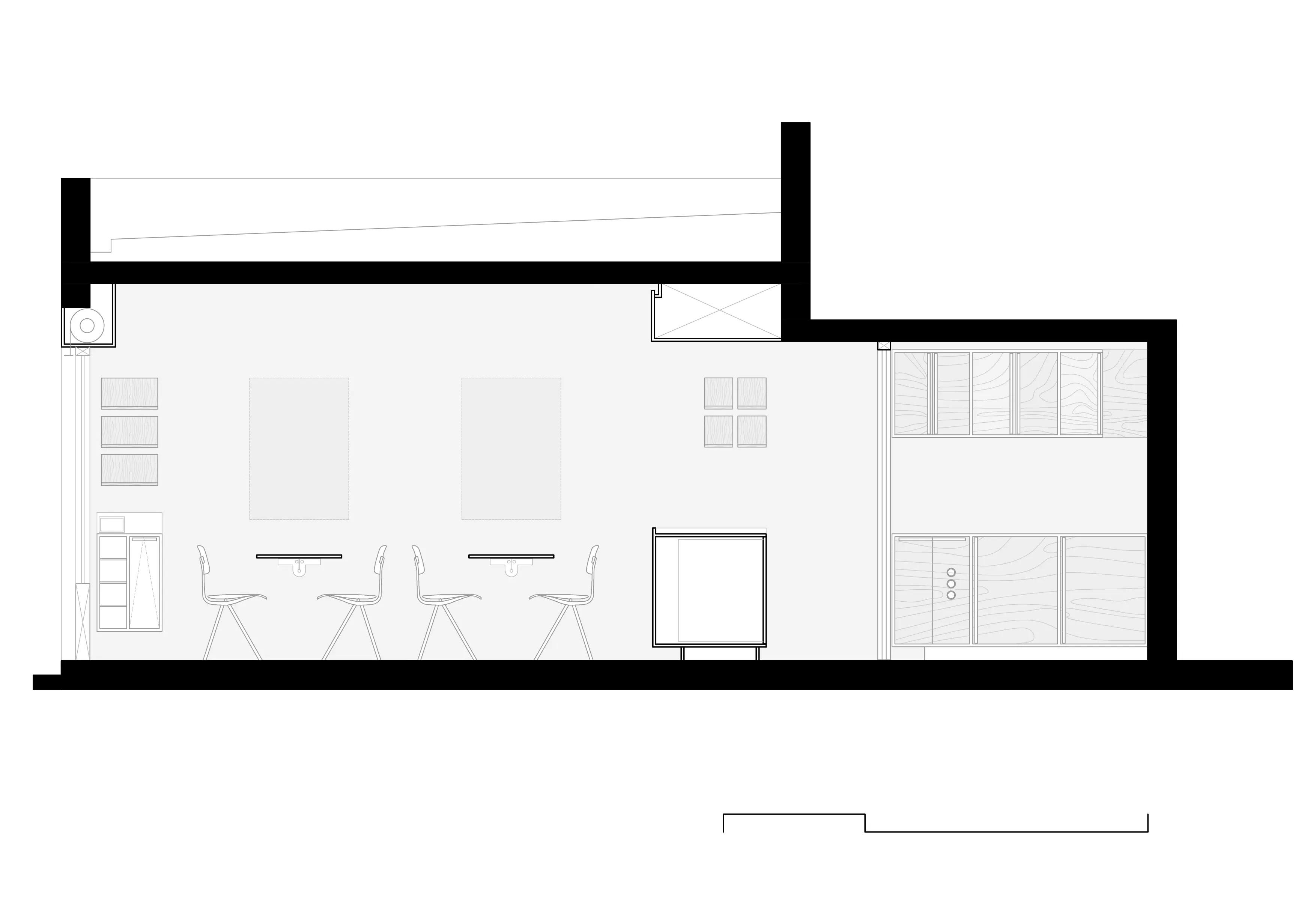
Diseño y construcción de una cafetería de especialidad cuyo principal desafío fue optimizar el poco espacio sin comprometer la experiencia del usuario. La propuesta se construye en torno al funcionamiento de la barra, que actúa como eje articulador del proyecto: organiza el flujo, separa las zonas y concentra la actividad principal del lugar. El resultado es un espacio pequeño y solemne, donde el ritual del café adquiere protagonismo, otorgando una experiencia cercana y atenta para cada usuario.