Memorial Villa San Luis

Las Condes, Santiago, 2025.

Anteproyecto
Concurso Público
800 m²

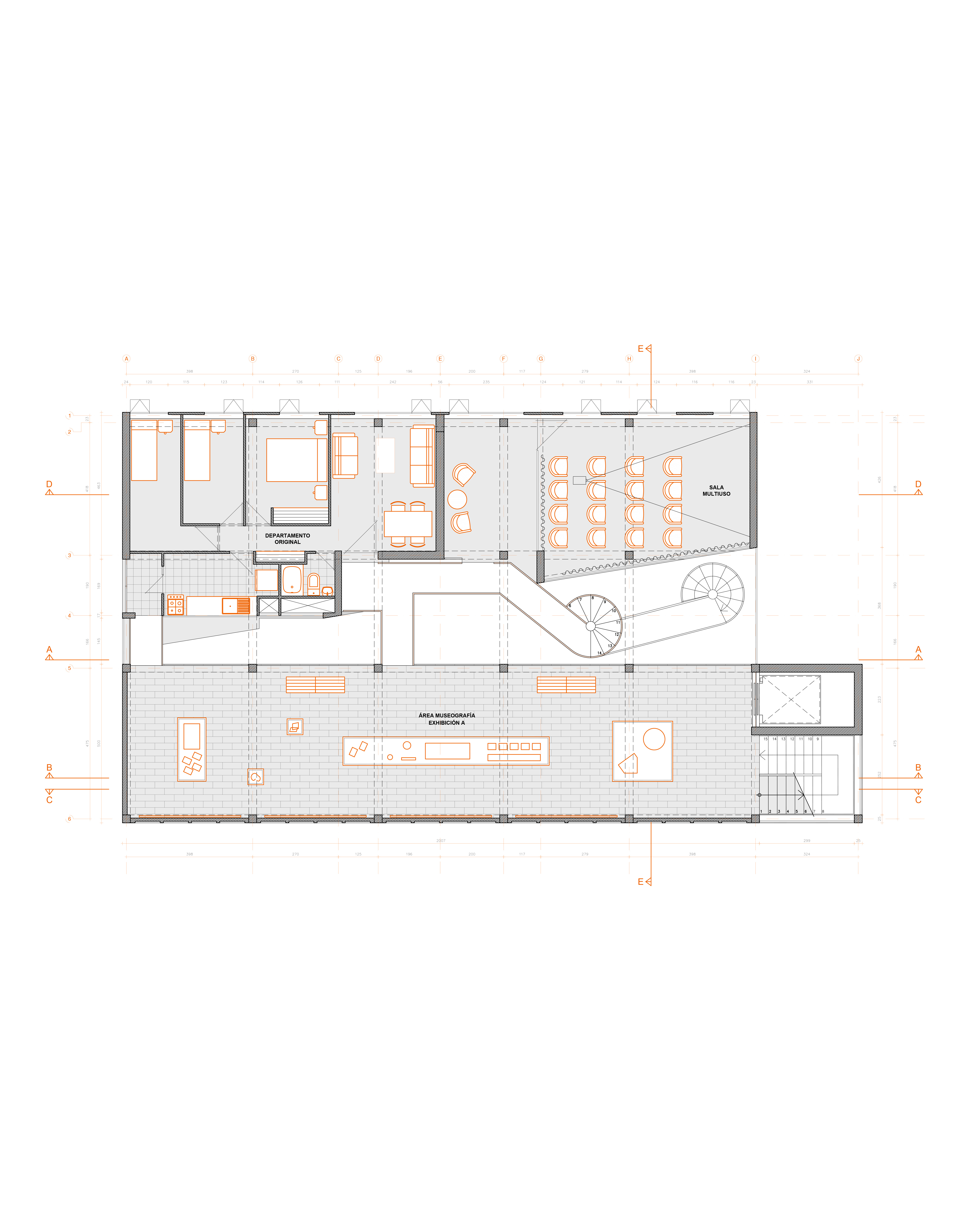
Anteproyecto para el Museo Memorial Villa San Luis, desarrollado como propuesta para concurso público orientado a resignificar el Block 14 de la ex Villa San Luis en Las Condes. Inspirado en el concepto de animita, propone un espacio de memoria viva y colectiva, donde la arquitectura actúa como testimonio material de una herida urbana. Un talud en forma de anillo enmarca el sitio, la intervención articula la preexistencia y lo nuevo para consolidar al museo como hito urbano, reconociendo el valor histórico, social y simbólico del lugar.