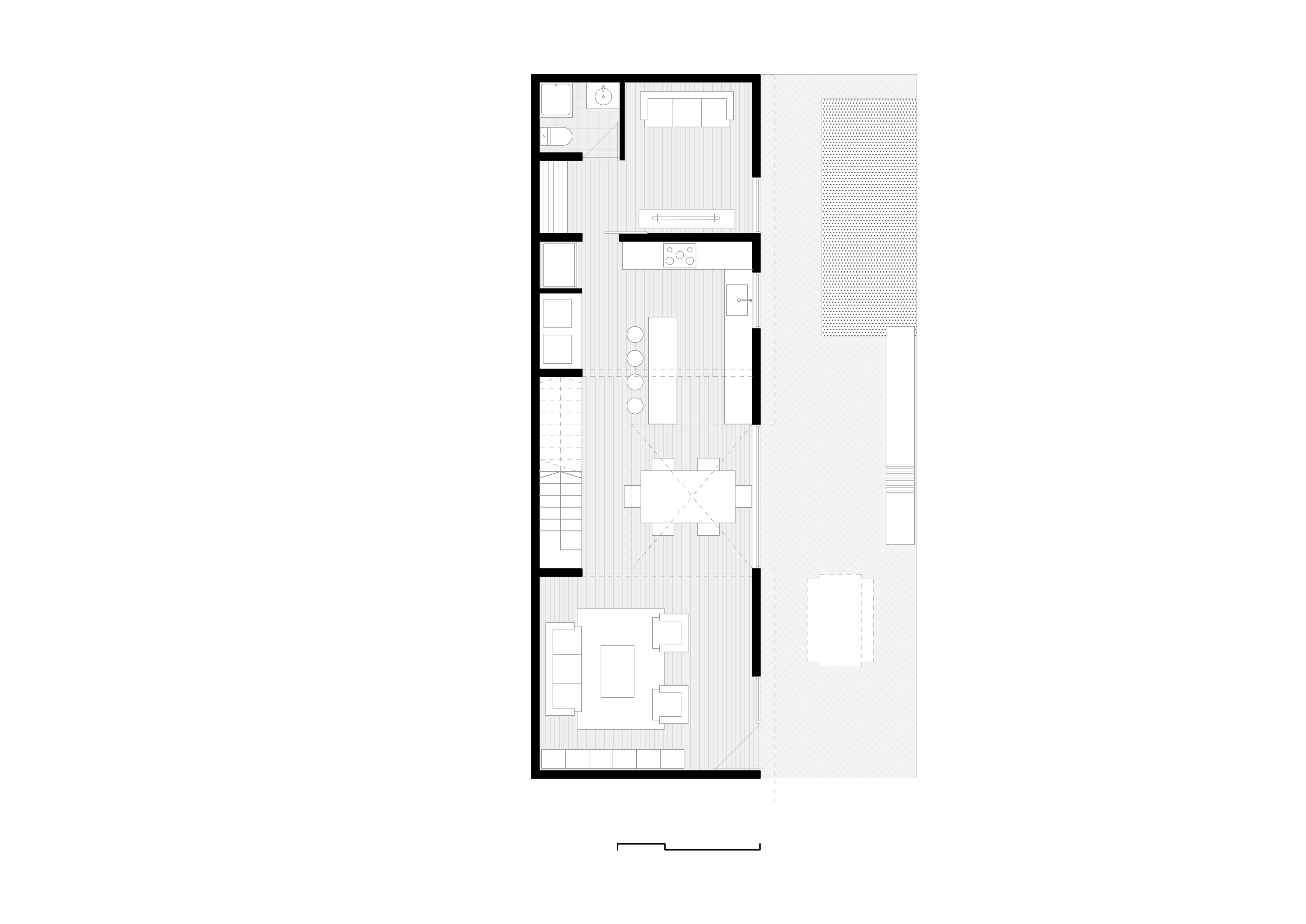
Dorsal

Recoleta, Santiago, 2021.

Arquitectura residencial
135 m²

Ampliación y remodelación completa de una vivienda unifamiliar ubicada en la comuna de Recoleta.